Woonoppervlakte
Circa 54 m²
Inhoud
Circa 176 m³
Bouwjaar
Gebouwd in 1984
Aantal kamers
2 kamers (1 slaapkamers)

Schutstraat 19

7907 CA, Hoogeveen (Drenthe)

Starters opgelet! Op een uitstekende locatie in het hart van Hoogeveen tref je dit leuke 2-kamerappartement op de eerste verdieping, met een berging op de begane grond. Het appartement beschikt over een balkon aan de zijde van de Schutstraat, dat vrij uitzicht biedt, en aan de achterzijde bevindt zich een heerlijk zonnig dakterras. Het appartement ligt midden in het centrum, met supermarkten, winkels en horeca rondom de entree. De uitvalswegen richting de A28 en A37 zijn bovendien goed bereikbaar.

INDELING APPARTEMENT
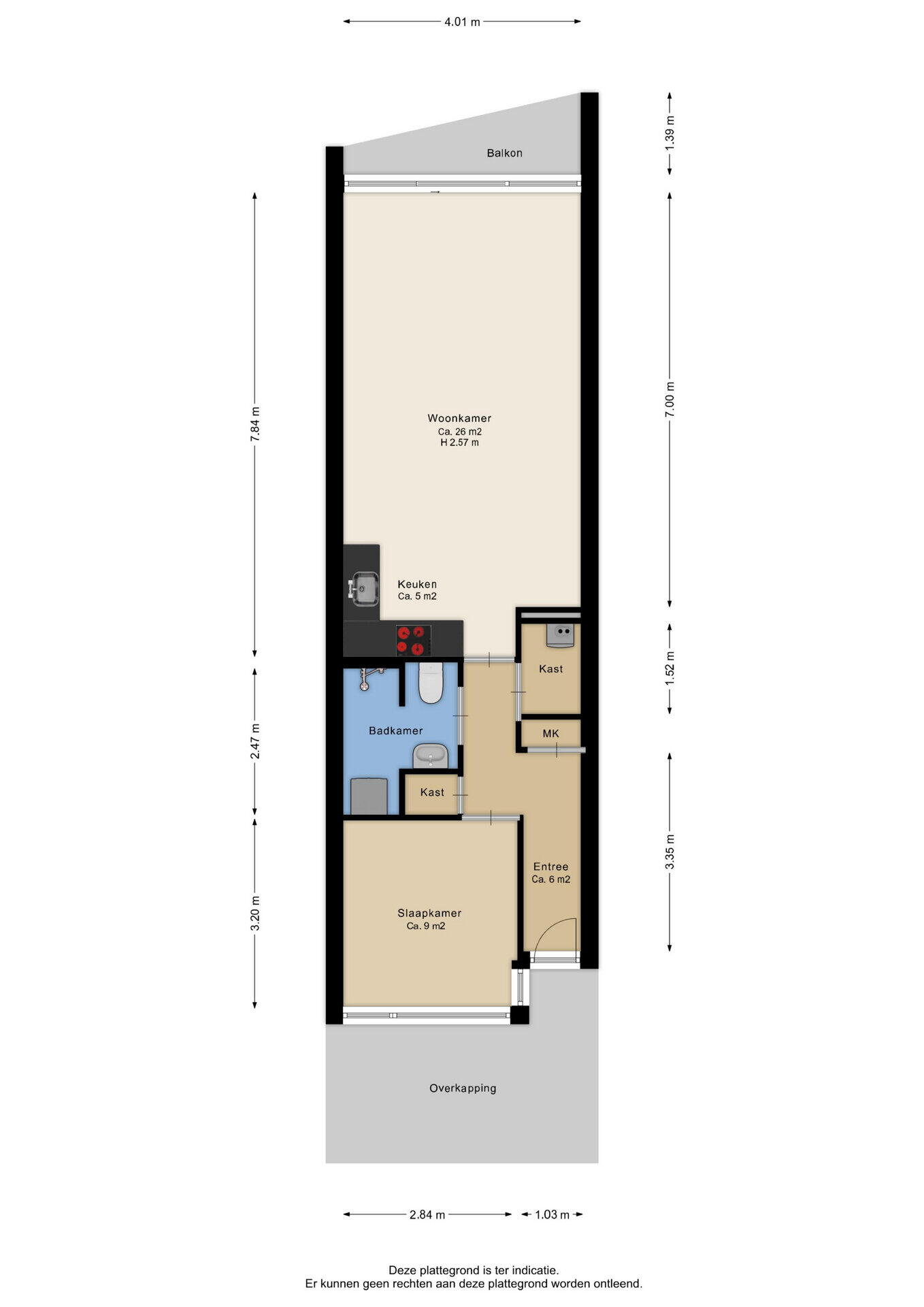
Bij binnenkomst via de entree kom je in de hal, die toegang biedt tot vrijwel alle vertrekken van het appartement. Direct in de hal bevinden zich de meterkast, de cv-ruimte en een aparte bergkast. Aan de achterzijde van het appartement vind je een ruime slaapkamer (ca. 9 m²). Naast de slaapkamer ligt de moderne badkamer (ca. 5 m²), die is voorzien van een toilet, inloopdouche, wastafelmeubel en een aansluiting voor witgoed. Vanuit de hal bereik je de open keuken (ca. 5 m²), die beschikt over inbouwapparatuur, waaronder een inductiekookplaat, afzuigkap, koelkast, combi-magnetron, draaicarrousel en vaatwasser. De keuken staat in verbinding met de royale woonkamer (ca. 26 m²), waar de raampartijen en de schuifpui zorgen voor natuurlijk lichtinval en een directe verbinding met het balkon. Het overdekte balkon ligt op het noorden. Aan de achterzijde is er bovendien de mogelijkheid om buiten te zitten op een zonnig zuidgericht dakterras.

BUITENOM
Het appartement is goed onderhouden en is gebouwd rond 1984. Het maakt deel uit van een kleinschalig appartementencomplex. Het appartement is vanuit de centrale, afsluitbare hal te bereiken. Op de begane grond bevindt zich de inpandige berging (ca. 5 m²), waar je ruimte hebt om onder andere fietsen te stallen. Parkeerruimte is beschikbaar op het Schutsplein, dat via de achterzijde gemakkelijk te bereiken is. Hier kan een parkeervergunning voor bewoners voor worden verkregen.

STERKE PUNTEN:
- Instapklaar appartement;
- Centraal gelegen in het centrum van Hoogeveen;
- Goed onderhouden en voorzien van energielabel C;
- Schuifpui met toegang tot het balkon aan de voorzijde;
- Parkeren met vergunning voor € 62,- per jaar;
- VvE-bijdrage van € 85,- per maand;
- Op loopafstand van verschillende voorzieningen.

Plattegronden

Overdracht

Vraagprijs
€ 225.000 k.k.
Status
Verkocht
Aanvaarding
In overleg
Bijdrage VvE
€ 85 p/m

Bouw

Object type
Portiekflat, appartement
Soort bouw
Bestaande bouw
Bouwjaar
1984
Soort dak
Zadeldak bedekt met bitumineuze dakbedekking

Oppervlakte en inhoud

Woonoppervlakte
54 m²
Inhoud
176 m³
Externe bergruimte
5 m²
Gebouwgeb. buitenruimte
4 m²

Indeling

Aantal kamers
2 kamers (1 slaapkamers)
Aantal badkamers
1 badkamer
Badkamervoorzieningen
Toilet, wastafel, wastafelmeubel, inloopdouche, wasmachineaansluiting
Aantal woonlagen
1 woonlaag
Voorzieningen
Mechanische ventilatie, tv-kabel, schuifpui, glasvezel kabel, domotica

Energie

Energielabel
C
Energielabel registratie
02-10-2025
Isolatie
Muurisolatie, dubbel glas
Verwarming
Cv-ketel
Warm water
Cv-ketel
Cv ketel
Remeha avanta combiketel gas gestookt uit 2012 (eigendom)

Buitenruimte

Ligging
Aan drukke weg, in centrum
Balkon / dakterras
Balkon, dakterras
Tuin
Geen tuin

Bergruimte

Schuur / berging
Inpandig
Voorzieningen
Voorzien van elektra

Garage

Soort garage
Geen garage

Parkeergelegenheid

Soort parkeergelegenheid
Openbaar parkeren, betaald parkeren, parkeervergunningen

VvE checklist

Inschrijving KvK
Ja
Jaarlijkse vergadering
Ja
Periodieke bijdrage
Ja, € 85 p/m
Reservefonds aanwezig
Ja
Onderhoudsplan
Ja
Opstalverzekering
Ja

Energieverbruik in Hoogeveen

Energielabel deze woning

Energielabel C

Publicatie energielabel: 02-10-2025

Stroomverbruik per jaar

1840 kWh

(Gemiddelde appartement in Hoogeveen)

Gasverbruik per jaar

800 m³

(Gemiddelde appartement in Hoogeveen)

* Cijfers zijn afkomstig van het CBS en bedoeld als indicatie en kunnen verschillen voor deze woning

Indicatie hypotheeklasten

Eigen inleg:
Spaargeld / overwaarde

Rente:
Laagste 10-jaars rente

Laagste 10-jaars rente

2,98% - Centraal Beheer Groen... - NHG


3,25% - Centraal Beheer Groen... - 80%

Laagste 20-jaars rente

3,29% - Centraal Beheer Groen... - NHG


3,52% - Centraal Beheer Groen... - 80%

Laagste 30-jaars rente

3,41% - Centraal Beheer Groen... - NHG


3,74% - Centraal Beheer Groen... - 80%


Hypotheek:

Bruto maandlasten: € 0 p/m

Netto maandlasten: € 0 p/m

Hoe berekenen we dit?

Het rentepercentage is gebaseerd op de laagste 10 jaars vaste rente voor één hypotheekdeel. De vermelde rente (2.98% met NHG) is gecontroleerd op 05-01-2026. Deze berekening is gebaseerd op een annuïteitenhypotheek die volledig wordt afgelost, waarbij de maandlasten gedurende de gehele looptijd gelijk blijven. De werkelijke rente en netto maandlasten kunnen variëren, afhankelijk van uw persoonlijke situatie en de hypotheekverstrekker. Raadpleeg een financieel adviseur voor een nauwkeurige berekening en advies. Aan deze berekening kunnen geen rechten worden ontleend; het dient enkel als indicatie.

Documentatie

Kadastrale kaart

Leefomgeving

Vragenlijst-B

Lijst van Zaken

Plattegrond perceel

Plattegronden PDF

BAG uittreksel

Brochure-schutstraat-19-hoogeveen

Bezoek onze website

Zonnegrenzen bekijken

Op de kaart

Inwoners in Hoogeveen

Cijfers voor postcodegebied 7907

Totaal aantal inwoners
2005 inwoners
Mannen
48%
Vrouwen
52%

Inwoners in Hoogeveen

Cijfers voor postcodegebied 7907

tot 15 jaar
12%
15 tot 25 jaar
10%
25 tot 35 jaar
20%
45 tot 65 jaar
25%
65 en ouder
32%

Huishoudens in Hoogeveen

Cijfers voor postcodegebied 7907

Eenpersoons zonder kinderen
43%
Meerpersoons zonder kinderen
33%
Huishoudens zonder kinderen
76%

Huishoudens in Hoogeveen

Cijfers voor postcodegebied 7907

Huishoudens met één kind
8%
Huishoudens met meerdere kinderen
16%
Huishoudens met kinderen
24%

Woningen in Hoogeveen

Cijfers voor postcodegebied 7907

Woningen voor 1945
12%
Woningen tussen 1945 en 1965
29%
Woningen tussen 1965 en 1975
28%
Woningen tussen 1975 en 1985
11%
Woningen tussen 1985 en 1995
7%

Woningen in Hoogeveen

Cijfers voor postcodegebied 7907

Woningen tussen 1995 en 2005
12%
Woningen tussen 2005 en 2015
1%
Woningen na 2015
1%
Huurwoningen
50%
Koopwoningen
50%

Overige in Hoogeveen

Cijfers voor postcodegebied 7907

Gemiddelde WOZ waarde
€ 178.000,-
Personen onder de 65 met uitkering
12%

Overige in Hoogeveen

Cijfers voor postcodegebied 7907

Adressen per km²
1820
Stedelijkheid (schaal 1 op 5)
80%
Postcode kaart 7907 Gemeente kaart hoogeveen

Korte feiten over Hoogeveen

Hoogeveen (Drents: 't Ogeveine of 't Oveine) is de hoofdplaats van de gelijknamige gemeente in het zuiden van de provincie Drenthe in Nederland.

Groenhout Makelaars

Indien u vragen heeft of u wilt een bezichtiging inplannen, dan kunt u gebruik maken van het formulier hiernaast. Er zal daarna op korte termijn contact met u worden opgenomen.

Hollandscheveldse Opgaande 19

7913 VA, Hollandscheveld

0528 82 09 90 hoogeveen@groenhoutmakelaars.nl www.groenhoutmakelaars.nl

Dé makelaar in Hoogeveen

Als NVM Makelaar staan wij graag in Hoogeveen en omgeving voor u klaar. Groenhout Makelaars Hoogeveen bemiddelt bij de verkoop en aankoop van woningen, hierbij zijn wij zowel binnen als buiten Hoogeveen actief.

Ook voor taxaties in omgeving Hoogeveen kunt u contact met ons opnemen. Een echte ondernemer, zonder 9 tot 5 mentaliteit, waarbij persoonlijk contact en nauwe betrokkenheid belangrijk zijn.

Dé makelaar in Hoogeveen
Reviews Groenhout Makelaars

Schutstraat 19, Hoogeveen

€ 225.000 k.k. - Verkocht

Helaas, deze woning is verkocht!

Net te laat, deze woning is al verkocht. Laat een zoekopdracht bij ons achter zodat wij u direct kunnen helpen wanneer er nieuw aanbod beschikbaar komt.